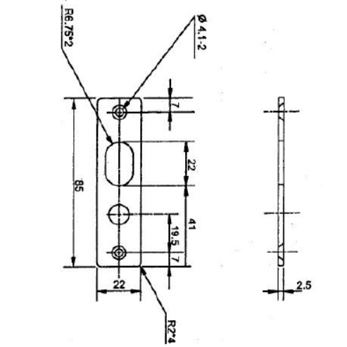
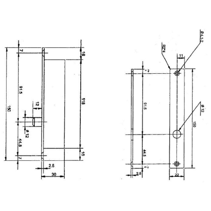
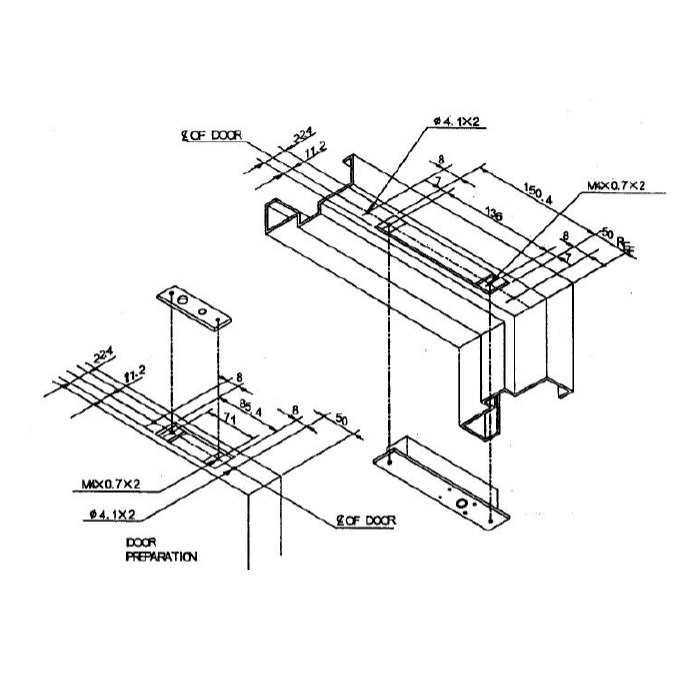
JEB-220 Потайной врезной ригельный замок
Потайной врезной ригельный замок - автоматическая разблокировка при пропадании напряжения питания для пожарной безопасности, возможность использования в НО режиме, глубина 22 мм, 12v DC, ток открытия 0,7 А, удержание 0,2 А, интервал срабатывания закрытия 3-6-9-12 сек. Замок может быть установлен в вертикальном и горизонтальном положении. Соленоидный замок JEB 220 может использоваться для деревянных, металлических алюминиевых дверей и ПВХ. Габаритные размеры 150х22х31 мм. Производство Jantek (Тайвань).



